唐人阁trg最新论坛_广州同城附近品茶_微信二维码叫小妹150_威客小姐兼职官网入口网址





公司新闻行业新闻

水泵扬程是什么意思? 攸力告诉你

来源:上海攸力|发布时间:2017-07-20| 浏览数:载入中...


相信刚接触到水泵的时候,都会听到水泵扬程啊,流量是多少等此类问题,作为一种十分常见的生产生活工具,使用范围十分地广如果你想进一步深入的了解这些专有名称代表的意义,那么攸力来告诉你,看以下内容前,请大家带着两个问题看:1.水泵扬程流量什么意思?2.水泵扬程有什么作用?


水泵扬程是什么意思 攸力告诉你



一、水泵扬程是什么意思

1. 流量

水泵的流量又称为输水量,它是指水泵在单位时间内输送水的数量。以符号Q来表示,其单位为升/秒、立方米/秒、立方米/小时。

2. 扬程

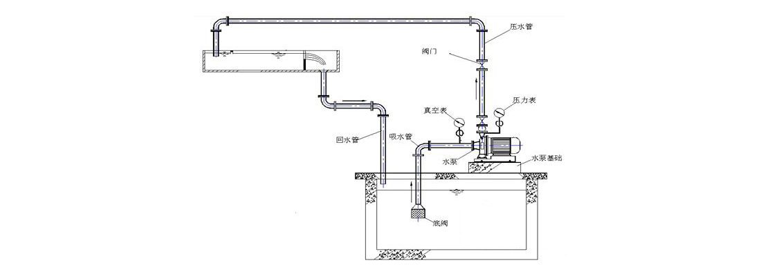
水泵的扬程是指水泵能够扬水的高度,通常以符号H来表示,其单位为米。离心泵的扬程以叶轮中心线为基准,分由两部分组成。从水泵叶轮中心线至水源水面的垂直高度,即水泵能把水吸上来的高度,叫做吸水扬程,简称吸程;从水泵叶轮中心线至出水池水面的垂直高度,即水泵能把水压上去的高度,叫做压水扬程,简称压程。即水泵扬程= 吸水扬程 + 压水扬程 应当指出,铭牌上标示的扬程是指水泵本身所能产生的扬程,它不含管道水流受摩擦阻力而引起的损失扬程。在选用水泵时,注意不可忽略。否则,将会抽不上水来。

3. 功率

在单位时间内,机器所做功的大小叫做功率。通常用符号N来表示。常用的单位有:公斤·米/秒、千瓦、马力。通常电动机的功率单位用千瓦表示;柴油机或汽油机的功率单位用马力表示。动力机传给水泵轴的功率,称为轴功率,可以理解为水泵的输入功率,通常讲水泵功率就是指轴功率。

由于轴承和填料的摩擦阻力;叶轮旋转时与水的摩擦;泵内水流的漩涡、间隙回流、进出、口冲击等原因。必然消耗了一部分功率,所以水泵不可能将动力机输入的功率完全变为有效功率,其中定有功率损失,也就是说,水泵的有效功率与泵内损失功率之和为水泵的轴功率。

二、泵的扬程、流量计算公式

泵的扬程H=32是什么意思?

扬程H=32是说这台机器可以把水提高32米

流量=横截面积*流速

流速需要自己测定:秒表

三、泵的扬程估算

水泵的扬程与功率大小没有关系,与水泵叶轮的直径大小和叶轮的级数有关,同样功率的水泵有可能扬程上百米,但流量可能只有几方,也可能扬程只有几米,但是流量可能上百方。总的规律是同样功率下,扬程高的流量少,扬程低的流量大,没有标准计算公式来确定扬程,与你的使用条件和出厂的水泵型号来确定。

可以按泵出口压力表来推算即可,如泵出口是1MPa(10kg/cm2)那扬程大约是100米,但是还要考虑吸入压力的影响。

对离心泵来说,它有三个扬程:实际吸水扬程、实际压水扬程和实际扬程,在没指明的情况下,一般认为扬程是指两水面的高度差。

(四)估算水泵功率的公式:

N=Q(L/s)*H(m)/102/(0.6~0.85)/0.85

解释是:

N,功率,单位是千瓦(kW)

Q,流量,单位是升每秒(L/s)

H,扬程,单位是米(m)

102,是1000/g,g即重力加速度,是一个单位换算

0.6~0.85,是水泵的效率,一般流量大的取大值,流量小的取小值;

0.85,功率因数

另外,一般水泵的功率有一些模数,从小到大有:1.1kW,2.2kW,3kW,4kW,5.5kW,7.5kW,11kW,15kW,18.5kW,22kW,30kW,37kW,45kW,55kW,75kW,90kW,110kW,132kW等等,而一般没有25kW的泵。

相信看到这里,不知道你对攸力介绍水泵的流量跟扬程有没有一定的了解呢?


WS5uwPGPWA3LA0JhimTtRQJGm84SFKdAcNDptoTiF6tV81zTObu6hVC6DFSFcisXa0uO88v4Mbxlp8MlINc1PmKD1DD1apr7SP8cNCkMvuM8InPXW/ZCykBJk0OeMiUThQRI6yGoWMJGleTnMmhToM63DJH1juJQ7FlNfwwF9iaBKYj1R4kal3FBqBTFakexPfanPIIPl+unHq8F+b2uT3hVHoR1FhDv
在  线  咨  询
售前QQ:2054266273
电话:+8618957752761
攸  力  泵  业
主站蜘蛛池模板: 安阳市| 平乐县| 永嘉县| 东莞市| 和林格尔县| 华池县| 龙岩市| 东丰县| 耒阳市| 方正县| 井研县| 遂昌县| 会昌县| 天水市| 红桥区| 新野县| 徐水县| 芷江| 孟州市| 三门县| 茂名市| 尚志市| 东乌| 安图县| 泽库县| 哈尔滨市| 徐闻县| 湖北省| 万山特区| 昭觉县| 得荣县| 钟山县| 新泰市| 旌德县| 彭水| 内江市| 榆林市| 大姚县| 石渠县| 皮山县| 鄂伦春自治旗|